Toggle navigation
Home
お知らせ
物件情報
お試し暮らし
仕事情報
支援制度
FAQ
お問合せ
Home
空き家・空き地バンク
空き家バンク No.76
募集中
空き家バンク No.76
物件情報
分類
売却
金額
300万円
住所
標津町北1条西1丁目1-13
延床面積
125.34㎡(38坪)
土地面積
462.7㎡(140坪)
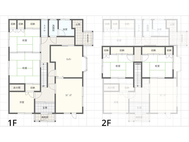
間取り・構造
5LDK ・ 木造2階建
築年度
昭和52年
町住宅補助
中古住宅取得補助:対象外
備考
・本物件は袋地(公道に直接接していない土地)となっており、
公道へは町有地を通行して出入りが可能です。
・車庫あり
・440万円→300万円へ値下げ(2025年11月)
物件MAP
空き家バンク No.76
物件写真
空き家・空き地バンクのご利用方法
▼以下ページをご確認ください。
空き家・空き地バンクのご利用について